Világos, tágas családi ház nagy kerttel Győrújbaráton

553 Nyomtatás Ajánlás Facebook

Győrújbarát csendes utcájában, Győrtől mindössze néhány perces autóútra kínálok megvételre egy 2003-ban épült, átgondolt elrendezésű, tágas családi házat. Az ingatlan már első belépéskor érezhetően világos, jól élhető terekkel rendelkezik, ahol a nagyobb közösségi helyiségek és a külön nyíló szobák egyaránt kényelmes mindennapokat biztosítanak.

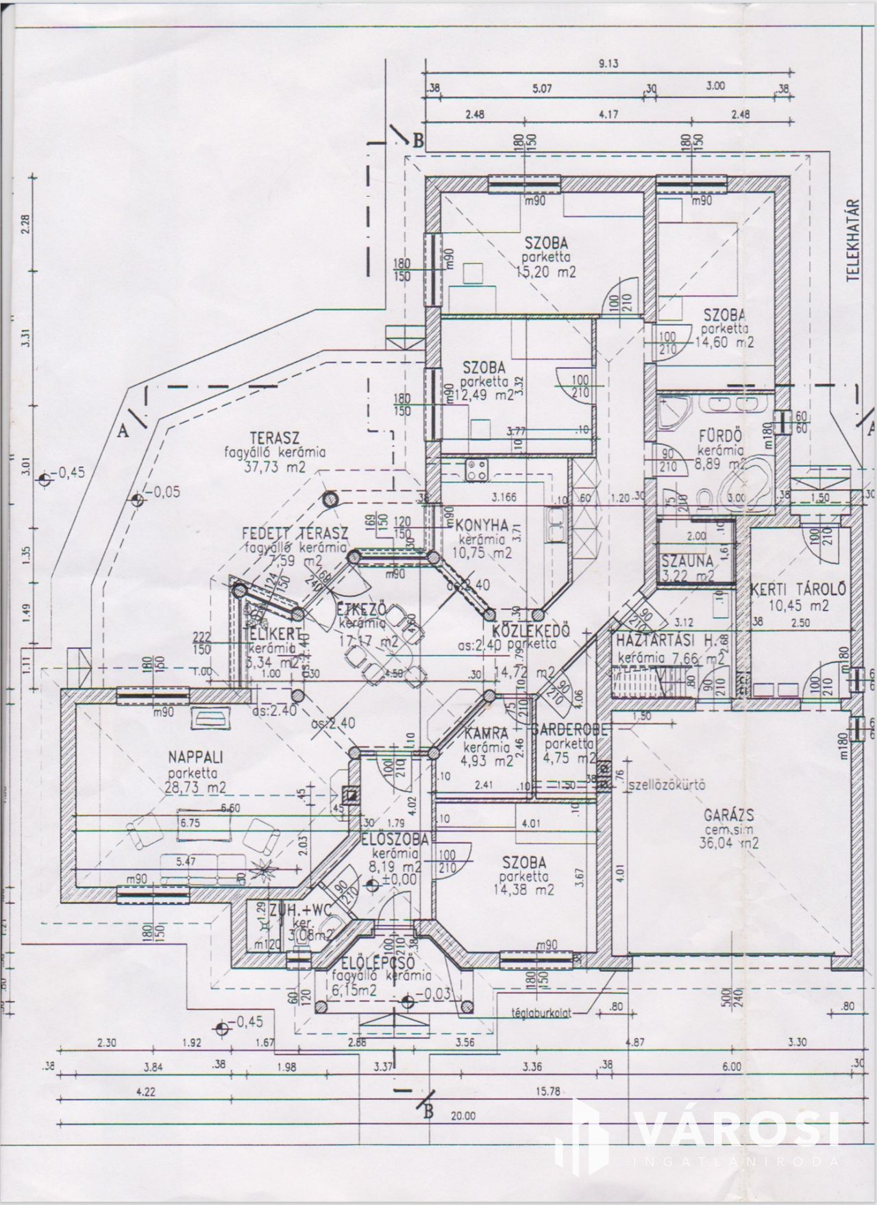
A ház központi része az amerikai konyhás nappali, amely méretéből adódóan valódi élettérként működik, ráadásul a kandalló még otthonosabb hangulatot ad. A földszinten négy külön nyíló szoba található, valamint két zuhanyzós fürdőszoba és egy infraszauna is helyet kapott, így akár nagyobb család vagy több generáció együttélése esetén is jól használható.

A tetőtér beépítésre került, ahol egy további nappali, egy szoba és egy kádas fürdőszoba került kialakításra, így ez a szint akár külön élettérként is funkcionálhat. A tetőtér nagysága bruttó 86 m². A tetőtérben továbbá 2 légkondíciónáló berendezés is található.

Az ingatlan összesen 279 m² alapterületű, amely magában foglal egy dupla garázst, amely elektromos kapuval van ellátva. A telek 2004 m²-es, gondozott, parkosított. A ház tégla építésű, a falak szigetelése 10 cm, a tető cserép borítású. A szobák radiátoros fűtéssel rendelkeznek, míg a többi helyiségben padlófűtés biztosítja a komfortot. A nyílászárók duplafalúak, a burkolatok jó minőségűek, az otthon összességében karbantartott, igényes állapotú.

A szobák laminált parketta, a többi helység kerámia burkolatokkal rendelkezik. A házhoz egy nagy, kerámialappal burkolt terasz kapcsolódik, amely közvetlen kapcsolatot teremt a kerttel, emellett praktikus és pihenésre is alkalmas. Automata öntözőrendszer, kerti pavilon, szerszámtároló, bográcsozási lehetőség és magaságyások is kialakításra kerültek. A teljes terület parkosított, rendezett.

Elhelyezkedésének köszönhetően ideális választás mindazok számára, akik nyugodt, kertvárosias környezetben szeretnének élni, ugyanakkor fontos számukra Győr gyors elérhetősége.
( A hirdetésben szereplő adatok, a tulajdonostól kapott információk alapján kerültek rögzítésre. )
Ne hagyja ki ezt a ritka lehetőséget - hívjon most, és tekintse meg személyesen!

Menyhárt Csilla

Menyhárt Csilla

Menyhárt Csilla

Ingatlanértékesítő
Győr
+36 (20) 263 7999
Észrevétel a hirdetéssel kapcsolatban
Egy ingatlanos naplója