Csanaki családi ház eladó- kiváló adottságú telekkel

423 Nyomtatás Ajánlás Facebook

ELADÓ CSALÁDI HÁZ GYŐR-MÉNFŐCSANAKON – TERMÉSZETES OTTHON, ÓRIÁS TELEKKEL

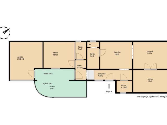
Győr-Ménfőcsanak csendes, zöldövezeti részén kínálunk megvételre egy 125 m²-es, 2005-ben teljeskörűen felújított családi házat + 35 m2 terasszal, amely egy 1987 m²-es telken helyezkedik el.

Kiváló infrastruktúra: iskola, óvoda, bölcsőde, gyógyszertár, posta és üzletek a közelben
Könnyű megközelíthetőség: autópálya gyorsan elérhető
Jó közlekedés: több buszjárat is rendelkezésre áll

Az ingatlan különlegessége a részben vályog falazat, amely nemcsak egyedi hangulatot ad az otthonnak, hanem számos előnyt is biztosít:

Miért előnyös a vályogfal?

✔ természetes, egészséges lakóklíma – nem bocsát ki káros anyagokat
✔ páraszabályozó képesség – mindig kellemes belső levegő
✔ kiváló hőtárolás – nyáron hűvös, télen melegen tart
✔ alacsonyabb fűtési igény
✔ jó hangszigetelés – csendes, nyugodt élettér
✔ tűzálló és tartós, megfelelő karbantartás mellett hosszú élettartam
✔ természetes anyag, amelyet a rovarok sem károsítanak

Ez az otthon ideális választás azoknak, akik energiatakarékos, természetközeli életre vágynak.

A ház jellemzői:
A ház első része vályogtégla 65 cm vastagságú , ami 2005-ben hátul hozzáépült:
✔ 38-as Porotherm tégla
✔ 2 hálószoba + tágas nappali (amerikai konyhás nappali)
✔ 2 fürdőszoba
✔ Bosch kondenzációs kombi gázkazán - radiátor hőleadókkal
✔ korszerű villamoshálózat
✔ egyedi gyártású fa nyílászárók
✔ külső hőszigetelés - speciális 5 cm légréteg + 10 cm kőzetgyapot + légáteresztő hőszigetelő vakolat
✔ klíma a maximális komfortért (2 db)
✔ elektromos garázskapu
✔ több autó számára udvari beállási lehetőség
✔ elektromos kovácsoltvas kapu

További lehetőségek:
-a hátsó házrésznél - beépíthető tetőtér – bővíthetőség
-1987 m²-es telek – diófa, füge és mogyoróbokorral
-kertészkedés, pihenés, akár gazdálkodás
-terasz - hangulatos kikapcsolódáshoz
-csendes, családbarát környezet

Az ingatlan esztétikai felújítás után igazi ékszerdobozzá válhat.

📍 Ha fontos Önnek a nyugalom, a tér és az egészséges otthoni környezet, ezt a házat érdemes megnéznie!
Az ingatlanról készült alaprajz és videó a hirdetésben elérhető, melyek segítik a részletesebb betekintést.

💰 Irányár: 101 900 000 Ft

📞 Érdeklődés és időpont egyeztetés, akár hétvégén is:
+36-30-7830075

A jelen hirdetésben rögzített, az ingatlannal kapcsolatos adatok, információk a Megbízó tájékoztatása alapján kerültek meghatározásra.
Az adásvétel során teljeskörű lebonyolítást vállalunk díjmentes jogi tanácsadással, bankfüggetlen hitelügyintézéssel!

Velki Nagy Viktória

Velki Nagy Viktória

5 éve a Városi Ingatlaniroda tagja
Ingatlanértékesítő, hiteltanácsadó
Győr
+36 (30) 783 0075
Észrevétel a hirdetéssel kapcsolatban
Egy ingatlanos naplója